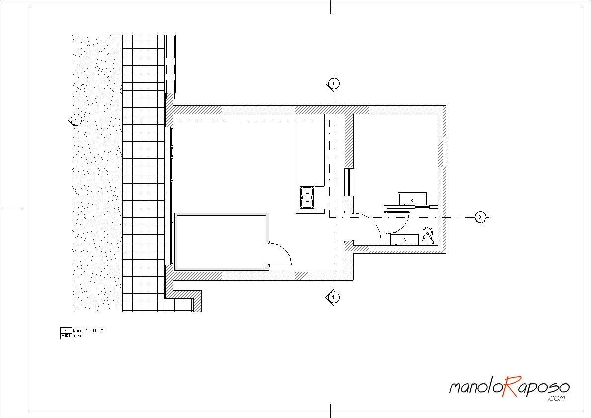
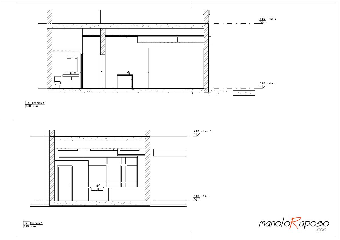
He realizado los planos para la licencia de actividad de un local, esta vez no he usado solo CAD, he querido probar los dos programas más usados en los despachos.
Con Revit: He realizado la parte de estructuras, paredes, suelos , fachadas, etc… Una vez modelado el local y la fachada, se ha realizado los alzados, secciones y vistas 3D. También se preparó toda la presentación en planos y después se exportaron a dwg directamente. Se podría realizar todo en Revit, pero particularmente creo que es mejor con AutoCAD realizar la parte de 2D.
Con AutoCAD: En cad ya lo tengo todo por mano y me es sencillo la realización de las instalaciones, lo único que veo más complicado es la gran diferencia de la utilización de capas. Los que venimos de AutoCAD estamos acostumbrados a nuestras capas y cuando exportas directamente a AutoCAD se crean por si solas y con muchos bloques, lineas, objetos, todos con sus colores y grosores. Es un poco laborioso adaptarlos a nuestra manera de trabajar. También se puede al exportar crear tu grupo de capas, tienes que trabajarte lo antes y se adelantaría mucho.
Dejo un par de planos y veis el resultado. (imágenes sin renderizar)



Deja un comentario